Kaltmiete

1.100 €

3
Zimmer
ca. 110 m²
Nutzfläche
ca. 112 m²
Gesamtfläche

Zentral in Ründeroth

Verkaufsfläche zur Miete

Zur Miete

Objekt-Nr: 66334-4260#btM58l


Preis

Kaltmiete:
1.100 €
Nebenkosten:
200 €
Kaution:
2200

Fläche

Zimmer:
3
Nutzfläche:
ca. 110 m²
Gesamtfläche:
ca. 112 m²
Verkaufsfläche:
ca. 98 m²

Räume / Flure

Etage:
1
Etagen:
1
Separate WCs:
1

Zustand

Baujahr:
1977
Denkmalschutz:
Nein

Weitere Informationen

verfügbar ab:
Nach Vereinbarung

Stellplatz-Details

Freiplatz:
Anzahl:
2
Miete:
25 €

Beschreibung

Die zur Miete stehenden Verkaufsflächen, mit einem großem Verkaufsraum, zwei Lagerräumen und WC verfügen über zwei Parkplätze und bietet damit ausreichend Platz für Kunden und Mitarbeiter. Das Gebäude ist solide gebaut und gut in Schuss, so dass es sich ideal für den Betrieb eines Ladengeschäfts oder Büros eignet.

Die Räumlichkeiten sind großzügig geschnitten und bieten viel Platz für individuelle Gestaltungsmöglichkeiten. Große Schaufenster sorgen für eine angenehme Atmosphäre und lassen viel Tageslicht herein. Der offene Grundriss ermöglicht eine flexible Nutzung der Fläche und bietet genügend Raum für Produktpräsentationen oder Arbeitsplätze.

Die zentrale Lage des Gebäudes ermöglicht eine gute Erreichbarkeit und eine hohe Kundenfrequenz, was sich positiv auf den Geschäftsbetrieb auswirken kann.

Insgesamt handelt es sich um eine attraktive Immobilie mit vielen Möglichkeiten zur individuellen Nutzung.

Lage

Die Verkaufsfläche befindet sich in Zentrum von Ründeroth, einem charmanten Ortsteil von Engelskirchen im Bergischen Land. Ründeroth liegt südlich von Köln und gilt als beliebte Gegend mit einer malerischen Landschaft und einem historischen Ortskern. In unmittelbarer Umgebung der Immobilie finden weitere Parkplätze und öffentliche Verkehrsmittel, die eine gute Anbindung an die umliegenden Städte gewährleisten.

Die Region Bergisches Land ist bekannt für ihre natürliche Schönheit und ihre vielfältigen Freizeitmöglichkeiten. Mit zahlreichen Wander- und Radwegen, historischen Fachwerkhäusern und idyllischen Ortschaften bietet das Bergische Land Erholungssuchenden und Naturliebhabern eine ideale Umgebung. Durch die gute Verkehrsanbindung ist die Region zudem gut erreichbar und bietet sowohl Einheimischen als auch Touristen eine Vielzahl an Möglichkeiten zur Freizeitgestaltung.

Ausstattung

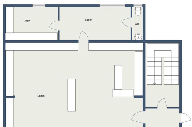
Die Immobilie verfügt über einen großen Verkaufsraum, zwei Lagerräume und ein WC.

2 PKW Stellplätze gehören zum Ladenlokal, weitere sind in der Fußläufigen Umgebung vorhanden.


Standort

51766 Engelskirchen


Galerie


Energieausweis

Baujahr
1977
Energieausweistyp
Bedarf
Energieausweis gültig bis
28. März 2035
Wärmewert
340,2 kWh/(m²*a)
Stromwert
31,7 kWh/(m²*a)
Wesentlicher Energieträger
Erdgas schwer
Energieausweis Ausstellungsdatum
2025-03-28
Befeuerungsart
Gas
Heizungsart
Etagenheizung
  • A+
  • A
  • B
  • C
  • D
  • E
  • F
  • G
  • H
  • 0
  • 25
  • 50
  • 75
  • 100
  • 125
  • 150
  • 175
  • 200
  • 225
  • >250
 
Wärmewert: 340,2 kWh/(m²*a)

Wichtiger Hinweis

Die auf dieser Website dargestellten Immobilienangebote stammen teilweise von externen Maklerunternehmen innerhalb der Westdeutsche Immobilienbörse e.V. - Partnergemeinschaft und werden automatisiert über eine Schnittstelle eingebunden. Die FISCHER IMMOBILIEN GmbH ist in diesen Fällen nicht Anbieterin im Rechtssinne, sondern stellt lediglich die technische Plattform zur Verfügung. Für die Richtigkeit, Vollständigkeit und Aktualität der Angaben übernimmt die FISCHER IMMOBILIEN GmbH keine Verantwortung.

Objektanfrage

*“ zeigt erforderliche Felder an

Einverständniserklärung zur Kontaktaufnahme*

Ähnliche Immobilien