Kaufpreis

688.000 €

ca. 123 m²
Wohnfläche
4
Zimmer
ca. 1.819 m²
Grundstück

Rar: Baugrund Forsbach

Wohngrundstück zum Kauf

Zum Kauf

Objekt-Nr: 10883B


Preis

Käuferprovision:

3,57 % inkl. 19 % MwSt.

Kaufpreis:
688.000 €

Fläche

Wohnfläche:
ca. 123 m²
Zimmer:
4
Nutzfläche:
ca. 80 m²
Grundstücksfläche:
ca. 1.819 m²

Räume / Flure

Badezimmer:
2

Zustand

Baujahr:
1963
Zustand:
gepflegt

Beschreibung

Ein Bungalow für die Eltern im Garten?
Familie und Enkelkinder, allesamt zusammen?
Oder Wohnen und Bauen?

Tradition trifft Potenzial.

Forsbach! Ein gewachsenes Wohnumfeld.

Auf einem insgesamt ca.1.819 m² großen Grundstück befindet sich im vorderen Teil bereits
ein Wohnhaus.

In zweiter Reihe erwartet Sie ein tolles, ebenes Grundstück mit vielen Möglichkeiten.

Hier vereinen sich Lage, Potenzial und Gestaltungsfreiheit: Das Bestandsobjekt und das
großzügige Baugrundstück bilden eine außergewöhnliche Grundlage für Ihre zukünftige
Wohn- oder Investmentvision.

Lage

Alt-Forsbach gehört zu den begehrten Wohnlagen von Rösrath im Rheinisch-Bergischen Kreis nahe Köln.
Die Umgebung ist geprägt von viel Grün, einer ruhigen, familienfreundlichen Struktur sowie einer hervorragenden Anbindung an Köln und das Bergische Land.
Einkaufsmöglichkeiten, Schulen, Kindergärten, medizinische Versorgung sowie Freizeit- und Naturangebote befinden sich im nahen Umfeld. Durch die Nähe zur A3 und zur S-Bahn sind sowohl die Kölner Innenstadt als auch der Flughafen Köln/Bonn schnell erreichbar.

Ausstattung

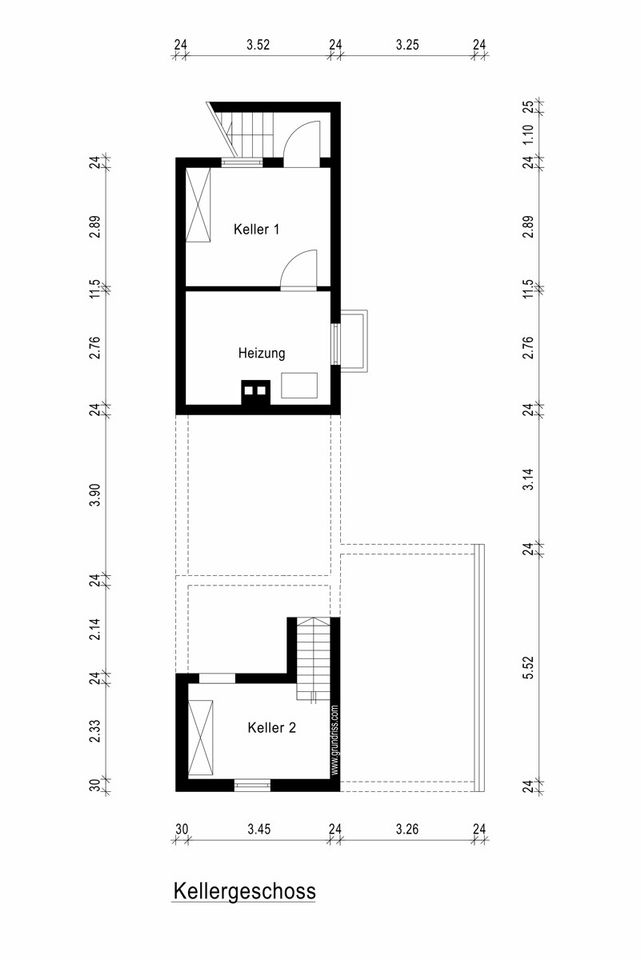
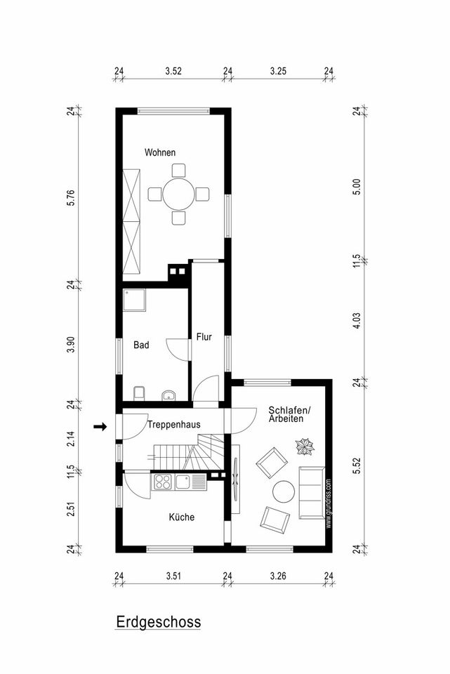
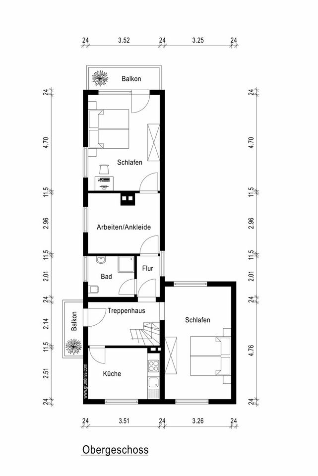
Das 1963 errichtete Ursprungsgebäude wurde 1968 um einen Anbau auf eine Wohnfläche
von ca. 122 m² erweitert. Es wurde fortwährend geliebt und gepflegt, auch wenn nicht alle
Ausstattungsmerkmale auf dem neuesten Stand sind. Hier eine kleine Übersicht über die
erfolgten Teilmodernisierungen:

– 1992 Fassade Zierkunststoffplatten mit 6 mm Dämmung Trespaplatten
– 1992 Garagenneueindeckung mit asbestfreien Wellplatten
– 1992 Umbau Bad und Küche im Erdgeschoss
– 1992 und 1998 Kunststofffenster und Balkontüren mit Doppelverglasung und
Kunststoffrollläden an allen Fenstern
– 2001 Neues Bad OG
– 2001 Neue Türen EG
– 2003 neue Dachpfannen

Die Garagen von 1966 und 1968, sowie die dazwischen liegende Waschküche wurden
1992 mit asbestfreien Wellplatten neu eingedeckt.

Die Gastherme von 1986 muss laut Gebäudeenergiegesetz innerhalb der ersten zwei Jahre nach Kauf ausgetauscht werden.

Sonstiges

Der Bodenrichtwert liegt für den vorderen, bebauten Grundstücksteil mit einer Größe von 420 m² bei 600 € pro Quadratmeter. Das entspricht einem reinen Grundstückwert von ca. 252.000 €.
Für das neue Baugrundstück wird mit einer Größe von 440 m² bei einem Richtwert von 575 € pro Quadratmeter ein Grundstückswert von ca. 253.000,-€ abzüglich der Erschließungskosten, plus ca. 960 m² Gartenland mit ca. 50.000 € erreicht.
Damit liegt der reine Grundstückswert über alles bei ca. 540.000 – 550.000 €.


Standort

51503 Rösrath / Forsbach


Galerie


Energieausweis

Energieausweistyp
Bedarf
Energieausweis gültig bis
28. August 2034
Endenergiebedarf
206,9 kWh/(m²*a)
Energieeffizienzklasse
G
Energieausweis Baujahr
1986
Wesentlicher Energieträger
Gas
Befeuerungsart
Gas
Heizungsart
Zentralheizung
  • A+
  • A
  • B
  • C
  • D
  • E
  • F
  • G
  • H
  • 0
  • 25
  • 50
  • 75
  • 100
  • 125
  • 150
  • 175
  • 200
  • 225
  • >250
 
Endenergiebedarf: 206,9 kWh/(m²*a)

Objektanfrage

*“ zeigt erforderliche Felder an

Einverständniserklärung zur Kontaktaufnahme*

Ähnliche Immobilien