Kaufpreis

550.000 €

ca. 123 m²
Wohnfläche
4
Zimmer
ca. 1.819 m²
Grundstück

Heute wohnen – morgen bauen

Wohngrundstück zum Kauf

Zum Kauf

Objekt-Nr: 10883AB


Preis

Käuferprovision:

3,57 % inkl. 19 % MwSt.

Kaufpreis:
550.000 €

Fläche

Wohnfläche:
ca. 123 m²
Zimmer:
4
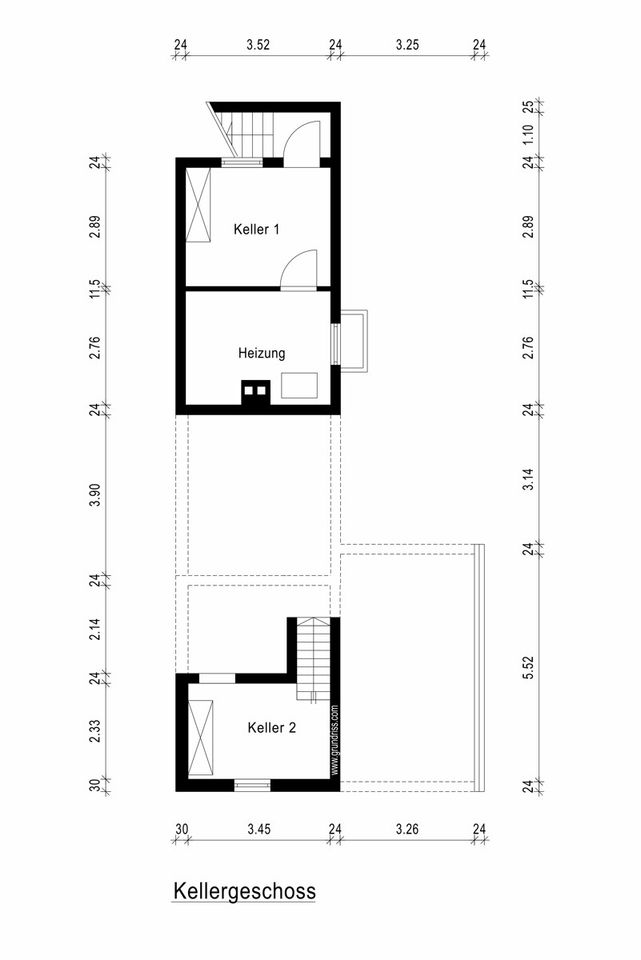
Nutzfläche:
ca. 80 m²
Grundstücksfläche:
ca. 1.819 m²

Räume / Flure

Badezimmer:
2

Zustand

Baujahr:
1963
Zustand:
gepflegt

Beschreibung

Wo Familie Raum findet und Zukunft wachsen kann!

Wo Kinder lachen, Alltag gelebt wird und Zukunft geplant werden darf: Dieses Grundstück bietet etwas ganz besonderes! Im bereits bestehenden Haus findet die Familie viel Platz zum heute Wohnen – und mit dem Baugrundstück im hinteren Bereich die Freiheit, weiterzudenken. Hier darf gebaut werden.
Später lässt sich das Haus als Renditeobjekt vermieten und bringt zusätzliche Entlastung.

Doppelte Perspektive auf einem 1.819 m² großen Grundstück in sonniger Höhenlage von Forsbach.

Tradition trifft Potenzial.

Lage

In einer ruhigen Einbahnstraße mitten in Alt-Forsbach und gehört damit zu den begehrten Wohnlagen von Rösrath im Rheinisch-Bergischen Kreis nahe Köln.
Die Umgebung ist geprägt von viel Grün, einer ruhigen, familienfreundlichen Struktur sowie einer hervorragenden Anbindung an Köln und das Bergische Land.
Einkaufsmöglichkeiten, Schulen, Kindergärten, medizinische Versorgung sowie Freizeit- und Naturangebote befinden sich im nahen Umfeld. Durch die Nähe zur A3 und zur S-Bahn sind sowohl die Kölner Innenstadt als auch der Flughafen Köln/Bonn schnell erreichbar.

Sonstiges

Der Bodenrichtwert liegt für den vorderen, bebauten Grundstücksteil mit einer Größe von 420 m² bei 600 € pro Quadratmeter. Das entspricht einem reinen Grundstückwert von ca. 252.000 €.
Für das neue Baugrundstück wird mit einer Größe von 440 m² bei einem Richtwert von 575 € pro Quadratmeter ein Grundstückswert von ca. 253.000,-€ abzüglich der Erschließungskosten, plus ca. 960 m² Gartenland mit ca. 50.000 € erreicht.
Damit liegt der reine Grundstückswert über alles bei ca. 540.000 – 550.000 €.


Standort

51503 Rösrath / Forsbach


Galerie


Energieausweis

Energieausweistyp
Bedarf
Energieausweis gültig bis
28. August 2034
Endenergiebedarf
206,9 kWh/(m²*a)
Energieeffizienzklasse
G
Energieausweis Baujahr
1986
Wesentlicher Energieträger
Gas
Befeuerungsart
Gas
Heizungsart
Zentralheizung
  • A+
  • A
  • B
  • C
  • D
  • E
  • F
  • G
  • H
  • 0
  • 25
  • 50
  • 75
  • 100
  • 125
  • 150
  • 175
  • 200
  • 225
  • >250
 
Endenergiebedarf: 206,9 kWh/(m²*a)

Wichtiger Hinweis

Die auf dieser Website dargestellten Immobilienangebote stammen teilweise von externen Maklerunternehmen innerhalb der Westdeutsche Immobilienbörse e.V. - Partnergemeinschaft und werden automatisiert über eine Schnittstelle eingebunden. Die FISCHER IMMOBILIEN GmbH ist in diesen Fällen nicht Anbieterin im Rechtssinne, sondern stellt lediglich die technische Plattform zur Verfügung. Für die Richtigkeit, Vollständigkeit und Aktualität der Angaben übernimmt die FISCHER IMMOBILIEN GmbH keine Verantwortung.

Objektanfrage

*“ zeigt erforderliche Felder an

Einverständniserklärung zur Kontaktaufnahme*

Ähnliche Immobilien